Cliff Hickman Design & Construction
Santa Barbara, California (805) 308-4324
EMAIL: cliff.hickmandesigns@gmail.com

       

       

SELECT A HOUSE TO VIEW PHOTOS, FLOOR PLANS & COMMENTS

 

Falling Dover
Santa Barbara, California

 

“All art worthy of the name is religious.” 

Henri Matisse

This home is on a beautiful view lot in the area of Santa Barbara known as the "Riviera".   The house was designed on three levels so that all the major rooms could face the ocean view.  The owners dubbed it "Falling Dover" because the big cantilevered balcony reminded them of Fallingwater.  This design makes extensive use of native stone, steel, glass and copper.  As with all successful architecture, this was a joint effort by the appreciative and involved owners, the designer, and by Patrick Tack Construction and his many fine sub-contractors.

EMAIL: cliff.hickmandesigns@gmail.com

 

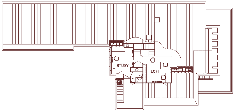
Upper Floor Plan

Main Floor Plan

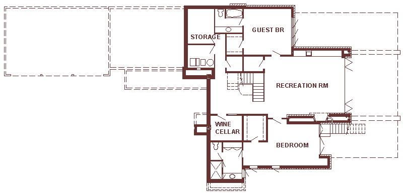
Lower Floor Plan

This property slopes down from north to south with the entry to the north and the ocean view to the south.  Due to setback restrictions the available space was limited to only 3 rooms in width and naturally the owners wanted all major rooms to face the view.  Thus the 3 south-facing rooms on main floor are the great room, dining room and master bedroom, which open to the balcony, and the the 3 south-facing rooms on the lower level are the recreation room and 2 bedrooms which open to the pool and spa.   The kitchen also has a view through the dining room, but to get a studio with an ocean view we had to go up to a third level.  During construction the owners decided to have a swimming pool so we added a lavatory directly accessible to the exterior pool area which does not show in this plan.

 

[Home] [Falling Dover] [George Michael Estate] [1st Hickman Residence] [2nd Hickman Residence] [Brick & Redwood]

[Mountain Dwelling] [Hillside Ranch House] [Ballard Canyon Project] [Skyline Drive]