|
||
SELECT A HOUSE TO VIEW PHOTOS, FLOOR PLANS & COMMENTS |
|
Hillside Ranch House |
"Big
Doesn't Necessarily Mean Better.
|
|
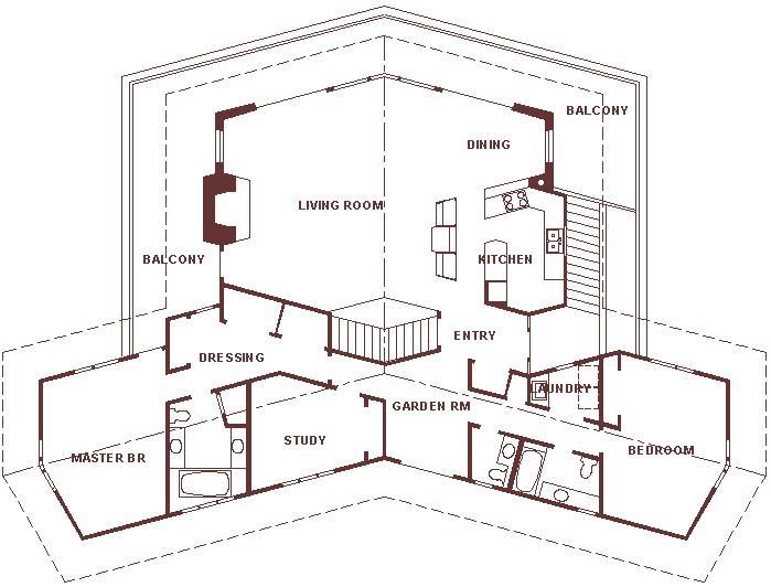
This home on a steep Santa Barbara hillside was originally designed for a single man and has only two bedrooms. The large living room windows face to the north with a view across the city to the mountains beyond. A clerestory window at the axis of the intersecting roofs affords a view of the hillside behind. Instead of the usual 90 degree corners, all the angles are either 105 degrees or 75 degrees, creating interesting interior spaces. The construction and interior design were unsupervised. |
|

|
Upper Floor Plan |
|
Main Floor Plan |
|
This is my first of only two symmetrical designs, the other being the George Michael house. As is usual with steep building sites, providing access and parking for the automobile is the initial concern and often dictates the design of the house. Here the only practical solution was to put the garage underneath with the living quarters above. In searching for a design that would fit the contours of the hillside I arrived at this 75/105 degree layout. |
[Home] [Falling Dover] [George Michael Estate] [1st Hickman Residence] [2nd Hickman Residence] [Brick & Redwood]
[Mountain Dwelling] [Hillside Ranch House] [Ballard Canyon Project] [Skyline Drive]